BK Estates

Shop To Let

Mile end road, Whitechapel, London, E1 4UN

£5,500 pcm

Summary

Shop To Let-Prime East London Location

No premium and no VAT

Situated on Mile End Road, East London (E1 4UN), very close to Zone 1

Highly visible location on a busy main road with strong pedestrian traffic

Excellent access to major bus routes and transport connections

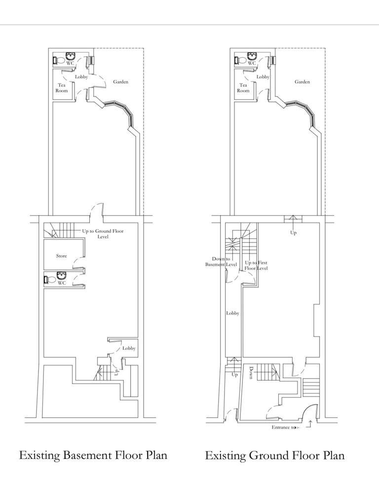
Approximately 2,000 sq ft of total internal space spread across two floors

Each floor is around 900 sq ft and can be used separately as two offices or shops

Suitable for a wide range of uses including restaurant, office, showroom, café, clinic, salon, creative studio, workshop, design studio, or retail shop

Previously operated as a restaurant; existing chimneys remain in place, eliminating the need for planning permission or building control applications for chimney use

Currently functioning as a parcel shop, but can be converted to a restaurant without planning permission under Class E usage

Flexible lease terms available from 6 to 15 years

Rent review every 3 years

Landlord will cover legal costs

Monthly rent: £5,000 (exclusive)

Rent-free period of 4 to 6 weeks available, subject to lease terms

Monthly rent and quarterly deposit payable in advance

No premium required

Available from 23rd September 2025

Council Tax Band: TBC

Additional Information

For further information on this property please call 020 3286 8432 or e-mail [email protected]

Interested in this property?

020 3286 8432
Enquire/request a viewing

Let Us Find Your Ideal home

BK Estates icon

Register For Property Alerts

Share this property: